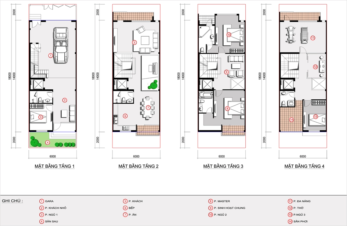
NHÀ LIỀN KỀ

  • Mật độ xây dựng: 80%
  • Số tầng cao theo quy hoạch: 5 tầng
  • Số mẫu nhà điển hình: 2 mẫu

NHÀ LIỀN KỀ LOẠI 1

NHÀ LIỀN KỀ LOẠI 2